Free Initiator Design Session

We offer 4 free initiator design sessions once every 6 months.
Each worth £750!

We review applications for these free sessions twice a year, on:

16th March

16th September

Supported by:

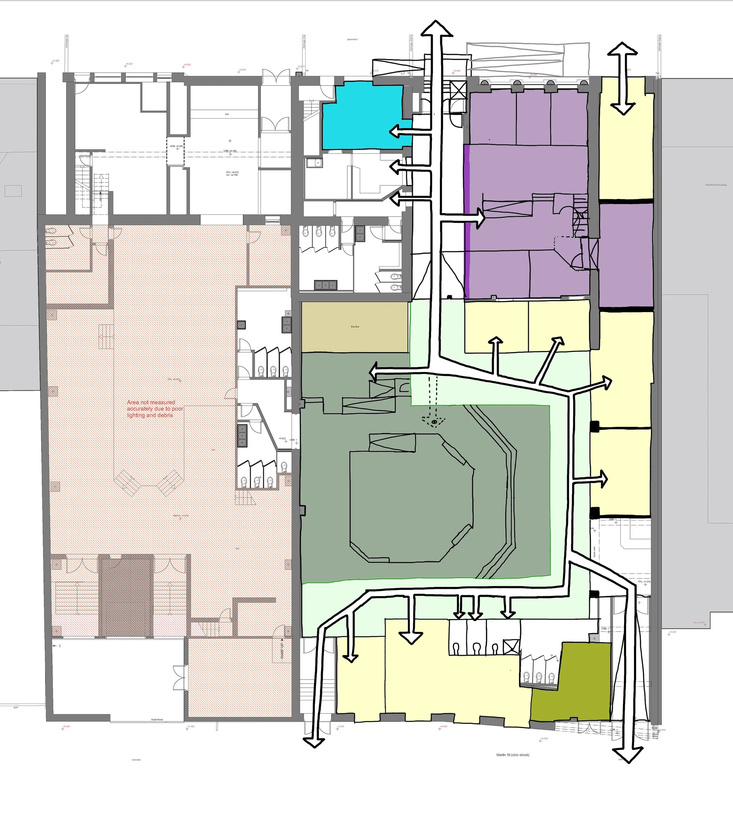
Activist stage options diagram of the C103 building
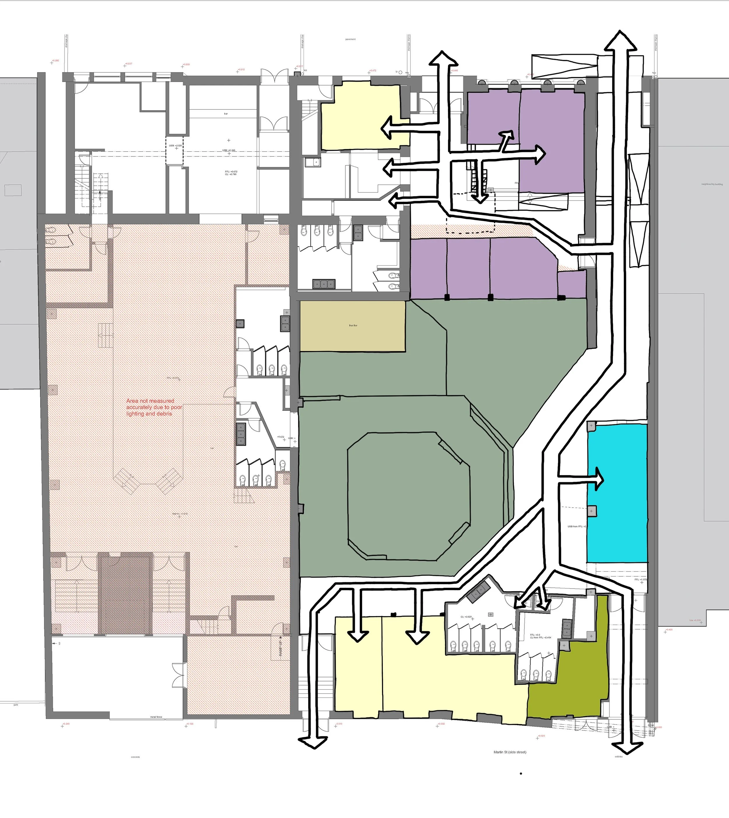
Activist stage options diagram of the C103 building
Initial Design Session work for Nudge Community Builders, Plymouth

Who is this for?

  • Community groups seeking funding or developing initial ideas

  • CLTs wanting a rapid site or building assessment

  • Organisations exploring retrofit and adaptive reuse opportunities

  • Groups needing early energy and retrofit direction

What does the Initiator Session consist of?

– One focused meeting (online or on site)
– One visualised idea, sketch option, or summary of recommendations
– A total of a day and half of our time

The aim is to help organisations make confident next steps — whether toward funding applications, planning conversations, community workshops or feasibility decisions.

Apply here →

Why we do initiator sessions:

The standard development process often requires comprehensive (and costly) surveys before any design thinking can begin.

Incremental’s community-led approach opens up opportunities earlier — helping community organisations understand what may be possible, strengthen funding bids, and move toward realistic action without upfront financial barriers.